“Trung thực – Trách nhiệm – Tận tâm”
Tâm huyết trong từng sản phẩm
Cải Tạo Biệt Thự Splendora 05 – Thiết Kế Biệt Thự Đẹp 3 Tầng Hiện Đại
Tổng quan
Ưu điểm
Biệt Thự Splendora 05 -Vẻ đẹp sang trọng, chuẩn sống đẳng cấp được SCON kiến tạo
Trong khu đô thị Splendora, nơi mỗi căn nhà đều mang một dấu ấn riêng, công trình biệt thự Splendora đẹp BT1-C28 tiếp tục là minh chứng cho tiêu chuẩn thiết kế biệt thự đẹp và thi công khắt khe của SCON. Đây cũng là biệt thự thứ 5 chúng tôi thực hiện tại Splendora, và thú vị hơn khi căn này nằm ngay sát sườn công trình đã hoàn thiện trước đó.
Sự đồng nhất về tinh thần thiết kế nhưng vẫn tinh tế trong hình khối – vật liệu – ngôn ngữ kiến trúc khiến nhiều người đi ngang phải bật lên câu:
“Ồ… lại thêm một căn đẹp nữa của SCON rồi đây!”

1. Kiến trúc hiện đại – mạnh mẽ – tinh giản chuẩn cao cấp
Căn biệt thự được định hình theo phong cách Hiện đại, với các đặc điểm nổi bật:
-
Hệ mảng đứng chạy dọc 3 tầng tạo cảm giác cao ráo, sang trọng.
-
Tông xám – ghi – đá vân mây chủ đạo kết hợp lam gỗ ấm, đem lại sự cân bằng thị giác và cảm giác sang trọng.
-
Ban công rộng – cửa kính lớn đón trọn ánh sáng tự nhiên, mở rộng tầm nhìn và kết nối với cảnh quan xanh.
Dù có diện tích lớn, công trình vẫn giữ được tinh thần “tối giản – thông thoáng – mạch lạc”, đúng phương châm mà các mẫu thiết kế biệt thự đẹp của SCON luôn hướng đến.

2. Ngoại thất được tối ưu để nâng tầm trải nghiệm sống
✔ Sân – vườn – chỗ đậu xe quy hoạch thông minh
Khu để xe rộng rãi, lối vào lát đá tự nhiên; hàng cây lớn bên hông giúp giảm bức xạ nhiệt và tạo “lá phổi xanh” cho toàn bộ biệt thự.
✔ Sảnh – hiên đón ấn tượng
Mái hiên lớn cùng trần lam gỗ và mảng tường đá xám đậm làm tăng sự bề thế, thể hiện rõ phong cách biệt thự Splendora đẹp – sang – khác biệt.
✔ Cổng – hàng rào tối giản nhưng hiện đại
Kết hợp gạch – lam thép – mảng đứng giúp tổng thể vừa an toàn vừa hài hòa vi kiến trúc chung.

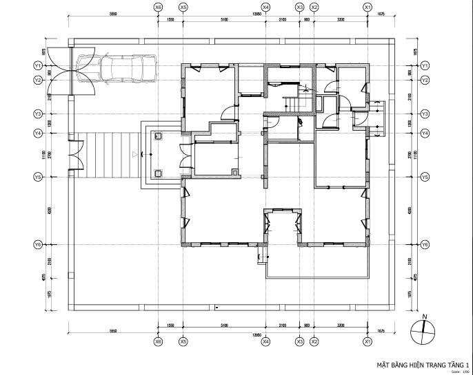
3. Hiện trạng mặt bằng & nhược điểm “ẩn” của biệt thự trước cải tạo

Khi một căn nhà đẹp vẫn có thể trở nên… đẹp hơn rất nhiều
Dù sở hữu diện tích rộng và cấu trúc 3 tầng, mặt bằng hiện trạng của căn biệt thự trước cải tạo biệt thự Splendora vẫn tồn tại nhiều vấn đề “ngầm”, ảnh hưởng đáng kể đến trải nghiệm sống. Đây là hạn chế rất phổ biến ở các căn biệt thự xây thô với lối kiến trúc kiểu cũ:
-
Không gian phân mảnh, thiếu sự liền mạch dù diện tích lớn.
-
Luồng di chuyển rối, nhiều khu vực thừa nhưng không khai thác được giá trị sử dụng.
-
Thiếu điểm nhấn – cảm giác sang trọng chưa tương xứng với mặt tiền bề thế.
-
Công năng bố trí dàn trải, không phục vụ đúng thói quen sinh hoạt của gia đình.
-
Các không gian quan trọng như master – phòng sinh hoạt chung – phòng thay đồ – khu giải trí chưa đạt tiêu chuẩn của một thiết kế biệt thự đẹp.
-
Ánh sáng – thông gió chưa được khai thác đúng, dù có lợi thế mặt thoáng.
Những nhược điểm này khó nhận ra chỉ qua phối cảnh, nhưng lại thể hiện rất rõ khi nhìn vào bản vẽ mặt bằng hiện trạng.
=>> Xem thêm: Dự án Splendora 04 – Biệt thự hoa hậu KĐT Splendora
4. Giải pháp của SCON – Tái cấu trúc toàn diện để nâng tầm cuộc sống
Thay vì sửa chữa từng phần, SCON lựa chọn tái thiết toàn bộ mặt bằng, tối ưu lại từ luồng giao thông đến các nhóm chức năng chính:
-
Tạo một trục giao thông xuyên suốt, giúp nhà mạch lạc, sang và dễ sử dụng.
-
Sắp xếp lại toàn bộ nhóm công năng theo nguyên tắc: mở – thoáng – sang – đúng nhu cầu thực tế.
-
Tập trung vào các “không gian giá trị cao”:
phòng master – sinh hoạt chung – phòng làm việc – khu giải trí – phòng thờ – phòng ngủ riêng tư. -
Khai thác ánh sáng tự nhiên và khoảng thở để đưa “chất sống” vào từng không gian.
-
Loại bỏ tối đa các “góc chết”, mở rộng diện tích sử dụng thực.
-
Tạo thiết kế sảnh vào sang trọng – điều mà mặt bằng hiện trạng gần như chưa thể hiện được.
Nhờ đó, căn biệt thự splendora sau cải tạo không chỉ đẹp hơn, mà còn sống tốt hơn – thoải mái hơn – xứng tầm với vị trí và giá trị tại Splendora.
5. SCON – Đơn vị thiết kế, thi công Biệt thự trọn gói
Là đơn vị đã thực hiện nhiều dự án cải tạo biệt thự Splendora, SCON am hiểu sâu sắc quy định thi công, tiêu chuẩn thẩm mỹ và kỳ vọng của nhóm khách hàng cao cấp tại đây.
Chúng tôi cung cấp trọn bộ dịch vụ:
-
Thiết kế kiến trúc biệt thự
-
Thiết kế nội thất
-
Thi công trọn gói – chìa khóa trao tay
-
Giám sát vận hành – bảo hành – bảo trì lâu dài
- Tư vấn giám sát
Sự thống nhất từ thiết kế đến thi công giúp công trình đạt đúng – đủ – đẹp, hạn chế tối đa phát sinh và đảm bảo chất lượng ở mức cao nhất.
Biệt thự BT1-C28 Splendora là minh chứng rõ ràng cho năng lực thiết kế biệt thự đẹp và thi công chuẩn mực của SCON. Từ hình khối kiến trúc tinh tế đến cách tái cấu trúc công năng thông minh, công trình thể hiện trọn vẹn giá trị của một cuộc sống đẳng cấp.
Nếu bạn muốn tìm hiểu sâu hơn về giải pháp cải tạo hoặc cần SCON phân tích mặt bằng ngôi nhà của mình, hãy liên hệ để được tư vấn chuyên sâu.
SCON VIỆT NAM – Đơn vị Thiết Kế Thi Công Trọn Gói Biệt Thự, Nhà Phố Đẹp, Khách Sạn Sang Trọng, Đẳng Cấp
Liên hệ tư vấn:
Hotline/zalo: 077.532.8686
Website: https://scon.vn/
Email: [email protected]
Trụ sở: Căn LK 15.18 Khu biệt thự liền kề Hải Ngân, Thanh Liệt, Thanh Liệt, Thanh Trì, Hà Nội
Xem nhiều hơn các Video công trình của Scon tại: S-CON TV
Dự án liên quan











